Στην ακμάζουσα Θεσσαλονίκη της ύστερης αρχαιότητας, ένα από τα σημαντικότερα διοικητικά και εμπορικά κέντρα της βυζαντινής αυτοκρατορίας, οι εύποροι πολίτες διαμόρφωναν τρόπους επίδειξης πλούτου και κοινωνικής θέσης. Στα περίχωρα της πόλης οι γαιοκτήμονες έχτιζαν πολυτελείς εξοχικές κατοικίες μεταφέροντας και εκεί την αισθητική και τις συνήθειες του άστεως. Η Εφορεία Αρχαιοτήτων Περιφέρειας Θεσσαλονίκης παρουσιάζει σήμερα Παρασκευή 6 Μαρτίου 2026 στην 38η Επιστημονική Συνάντηση για το Αρχαιολογικό Έργο στη Μακεδονία και τη Θράκη τα νέα ευρήματα από τη συνεχιζόμενη ανασκαφή. Την ανακοίνωση θα παρουσιάσουν η προϊσταμένη της Εφορείας Μαρίζα Τσιάπαλη και η αρχαιολόγος Αθηνά Τοκμακίδου.
Ιδιαίτερο ενδιαφέρον ανάμεσα στα πλέον πρόσφατα ευρήματα παρουσιάζουν τα τέσσερα δωμάτια με τα ψηφιδωτά δάπεδα που χρονολογούνται στον 5ο-6ο αιώνα μ.Χ. και ανήκουν σε οικοδόμημα εντός του ευρύτερου συγκροτήματος της έπαυλης. Τα δάπεδα κοσμούνται με ποικίλα γεωμετρικά μοτίβα και άνθινο διάκοσμο με ψηφίδες σε κόκκινες, κίτρινες, λευκές και μπλε αποχρώσεις. Η παρουσία τους σε πολλαπλούς χώρους του ίδιου οικοδομήματος αποτελεί ισχυρή ένδειξη του υψηλού βιοτικού επιπέδου των ιδιοκτητών.

Οι τέσσερις χώροι (δωμάτια) του οικοδομήματος που αντιστοιχεί στη φάση επέκτασης της έπαυλης
Νέα δεδομένα για ένα γνωστό συγκρότημα
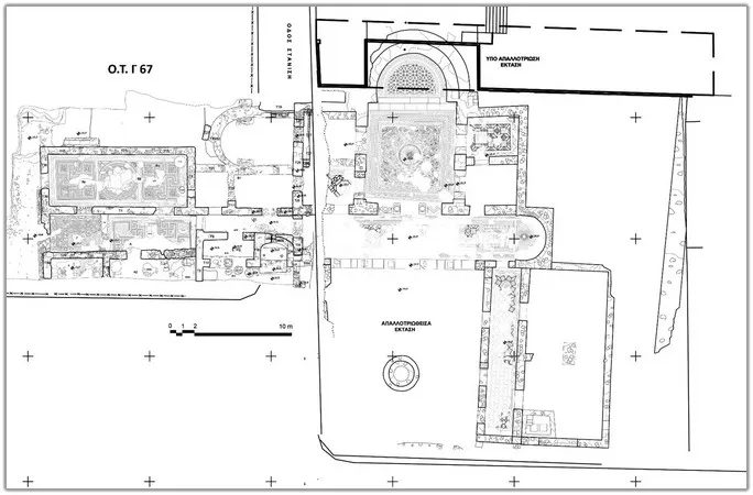
Η αγρέπαυλη του Παλαιοκάστρου είχε εντοπιστεί σε ανασκαφές του 1998 και του 2002, στα οικοδομικά τετράγωνα Γ70 και Γ71. Η έρευνα στο παρακείμενο αδόμητο οικοδομικό τετράγωνο Γ67, φερόμενης ιδιοκτησίας του Δήμου Ωραιοκάστρου, επεκτείνει και εμπλουτίζει σημαντικά την εικόνα του εντυπωσιακού συγκροτήματος. Από το 2015 η Εφορεία εργάζεται συστηματικά στον χώρο, ενώ το 2023 η ανασκαφή επεκτάθηκε στην οδό Στανίση και το 2024 πραγματοποιήθηκε η ενοποίησή της με το υπό ανασκαφή οικόπεδο.
«Κατά την ανασκαφή που διενεργήθηκε μέχρι και σήμερα από την Εφορεία μας στον χώρο δυτικά του αρχικού πυρήνα της αγρέπαυλης, αποκαλύφθηκαν τα κατάλοιπα οικοδομημάτων που ανάγονται χρονικά σε περίοδο σύγχρονη, μεταγενέστερη αλλά ακόμη και προγενέστερη του αρχικού πυρήνα της έπαυλης, της οποία αποκαλύφθηκε με σαφήνεια ο δυτικός εξωτερικός τοίχος οριοθέτησής της. Επιπλέον αποκαλύφθηκε μία αψιδωτή αίθουσα, η οποία βαίνει με κατεύθυνση Δ-Α κάτω από τον δυτικό τοίχο της έπαυλης, καθώς και μία πιόσχημη κατασκευή, η οποία εγκιβωτίζεται στους τοίχους της έπαυλης και διαμορφώνει στον βόρειο τοίχο της κόγχη. Πρόκειται πιθανώς για μέρος μίας λουτρικής εγκατάστασης, σύγχρονης με την έπαυλη», σημειώνουν οι κ. Τσιάπαλη και Τοκμακίδου.
Η παρουσία ιδιωτικού λουτρού επιβεβαιώνει το υψηλό επίπεδο οργάνωσης και διαβίωσης στο συγκρότημα, που θα μπορούσε να συγκριθεί με εκείνο των αστικών επαύλεων της ίδιας εποχής.

Συνολική κάτοψη της έπαυλης
Η πορεία του συγκροτήματος στο Παλαιόκαστρο αποτυπώνει τις μεταβολές μιας ολόκληρης εποχής: Τον 6ο αιώνα δέχτηκε επισκευές, στα τέλη του ίδιου αιώνα μια πυρκαγιά το κατέστρεψε, και όμως ο χώρος συνέχισε να κατοικείται: τον 7ο-8ο αιώνα αξιοποιήθηκε εκ νέου, μέχρι την οριστική εγκατάλειψή του στους μεταβυζαντινούς χρόνους. Μια ιστορία αιώνων που η ανασκαφή της Εφορείας Αρχαιοτήτων Περιφέρειας Θεσσαλονίκης συνεχίζει να ξεδιπλώνει, φωτίζοντας πτυχές της ζωής, της οικονομίας και της κοινωνικής προβολής των ελίτ της ύστερης αρχαιότητας στη Μακεδονία.









