Πρόκειται για ένα έργο πνοής που συνδυάζει τον βιοκλιματικό σχεδιασμό με την αισθητική αναβάθμιση, και χρηματοδοτείται από πόρους του ΕΣΠΑ 2021-2027 μέσω του Προγράμματος Δημοσίων Επενδύσεων (ΠΔΕ).
Τους πόρους αυτούς εξασφάλισε ο Δήμος Πυλαίας-Χορτιάτη μέσα από στοχευμένες ενέργειες και συστηματική διεκδίκηση, ενισχύοντας έμπρακτα τις υποδομές και την ποιότητα ζωής των πολιτών.
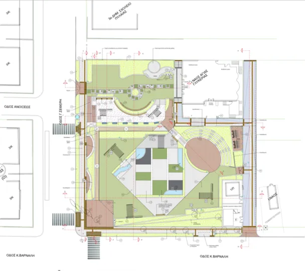
Η νέα πλατεία σχεδιάζεται ως ένας σύγχρονος, ανοιχτός και λειτουργικός δημόσιος χώρος, με έμφαση στο πράσινο, την προσβασιμότητα και τη βιώσιμη ανάπτυξη, φιλοδοξώντας να αποτελέσει ένα ζωντανό σημείο συνάντησης για μικρούς και μεγάλους.
Το έργο αποσκοπεί στην ανάδειξη της πλατείας ως ολοκληρωμένης εικόνας αστικού χώρου συνάθροισης κοινού, πρασίνου, ημερήσιας αναψυχής και φιλοξενίας μικρής κλίμακος εκδηλώσεων, με διαμορφωμένες προσβάσεις που καθιστούν όλα τα σημεία της παρέμβασης φιλικά στους χρήστες.
Εντάσσεται, στο πλαίσιο ολοκληρωμένου σχεδιασμού των κεντρικών κοινόχρηστων χώρων της Πολεοδομικής Ενότητας 4 της Πυλαίας με γνώμονα την αύξηση του αριθμού των επιφανειών που καταλαμβάνει το πράσινο (δένδρα) & οι φυτεύσεις, την ενίσχυση της διαπερατότητας των εδαφών με σκοπό την αναβάθμιση του αστικού περιβάλλοντος και την βελτίωση του μικροκλίματος της περιοχής.
Είναι η Τρίτη μεγάλη ανάπλαση στην Πυλαία μετά το Ελαιόρεμα και την Δελφών που αναδεικνύει τον συνολικό σχεδιασμό αλλά και το έμπρακτο ενδιαφέρον του Δήμου για την περιοχή.

Η συνολική διάρκεια υλοποίησης του έργου ανέρχεται σε 18 μήνες.
«Σήμερα κάνουμε πράξη μια ακόμη δέσμευσή μας! Σε λίγους μήνες από σήμερα προσφέρουμε στους συμπολίτες μας έναν ακόμα σύγχρονο, πανέμορφο και λειτουργικό δημόσιο χώρο. Με σχέδιο και συστηματική διεκδίκηση, αξιοποιήσαμε στο έπακρο τους πόρους του ΕΣΠΑ 2021-2027 και του ΠΔΕ, μετατρέποντας τα χρηματοδοτικά εργαλεία σε έργα ουσίας που αναβαθμίζουν την καθημερινότητα όλων μας. Είναι συγκινητικό πως η νέα πλατεία αναπτύσσεται πέριξ του Ι.Ν. Αγίας Γλυκερίας στα Κωνσταντινοπολίτικα Πυλαίας και φέρει την ονομασία του Οικουμενικού Πατριαρχείου “σφραγίζοντας” την ταυτότητα της περιοχής. Συνεχίζουμε να εργαζόμαστε με την ίδια συνέπεια, ομορφαίνοντας τις γειτονιές μας και χτίζοντας τον Δήμο που μας αξίζει. Να είναι καλορίζικη!», δήλωσε σχετικά ο Δήμαρχος Πυλαίας – Χορτιάτη και Πρόεδρος της Ένωσης Δήμων Κεντρικής Μακεδονίας Ιγνάτιος Καϊτεζίδης, ο οποίος ευχαρίστησε την Περιφερειάρχη Αθηνά Αηδονά και τον Αντιπεριφερειάρχη Κώστα Γιουτίκα, για την άριστη συνεργασία.





